

家人们!面对四口之家的原始户型,改造前真的满是问号❓ 改造后直接逆天改命,看完想原地照搬!
改造前的灵魂拷问
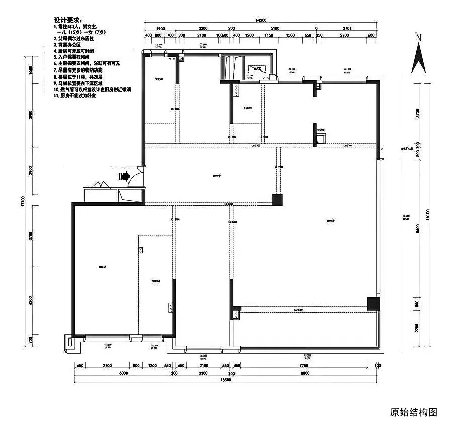
空间咋分配❓ 一家四口(1 大男宝 + 1 小女宝),还要给父母留客房、安排办公区,原始户型看着就头大…
收纳咋搞❓ 一家老小杂物多,没合理收纳,房子分分钟变 “仓库”!
公区咋互动❓ 想让客厅、餐厅、休闲区打通,一家人能随时互动,原始户型能实现吗?
改造后的逆天解答
✅ 空间魔法重组 把零散区域重新划分,主卧、儿童房、父母房各安其位???? 还单独辟出办公区,爸爸加班、妈妈处理工作都不耽误,完美解决 “空间挤兑”!
✅ 收纳隐形术 全屋定制嵌入式收纳柜? 客厅、卧室、走廊… 犄角旮旯全利用!孩子玩具、父母杂物、四季衣物统统藏起来,家里永远清清爽爽~
✅ 公区互动王炸 客厅 + 餐厅 + 休闲区打通,形成超大连通空间✨ 一家人吃饭、追剧、陪娃玩耍,视线无遮挡,氛围直接拉满!周末喊朋友来聚会,秒变 “社交天花板” 户型~
改造思路抄作业
动线优先:让做饭、吃饭、玩耍动线丝滑,少绕路 = 多省心!
弹性空间:预留可变换区域(比如书房变客房),应对家庭不同阶段需求~
采光为王:能砸墙就砸墙,让阳光铺满家,住起来幸福感翻倍!
从 “头疼户型” 到 “梦中情房”,这改造太绝了!四口之家想装修的宝子,直接锁死这套思路? 你家户型改造有啥难题?评论区聊聊,一起解锁新家密码~
#户型改造 #四口之家 #装修灵感 #空间设计 #收纳技巧
改造前的灵魂拷问
空间咋分配❓ 一家四口(1 大男宝 + 1 小女宝),还要给父母留客房、安排办公区,原始户型看着就头大…
收纳咋搞❓ 一家老小杂物多,没合理收纳,房子分分钟变 “仓库”!
公区咋互动❓ 想让客厅、餐厅、休闲区打通,一家人能随时互动,原始户型能实现吗?
改造后的逆天解答
✅ 空间魔法重组 把零散区域重新划分,主卧、儿童房、父母房各安其位???? 还单独辟出办公区,爸爸加班、妈妈处理工作都不耽误,完美解决 “空间挤兑”!
✅ 收纳隐形术 全屋定制嵌入式收纳柜? 客厅、卧室、走廊… 犄角旮旯全利用!孩子玩具、父母杂物、四季衣物统统藏起来,家里永远清清爽爽~
✅ 公区互动王炸 客厅 + 餐厅 + 休闲区打通,形成超大连通空间✨ 一家人吃饭、追剧、陪娃玩耍,视线无遮挡,氛围直接拉满!周末喊朋友来聚会,秒变 “社交天花板” 户型~
改造思路抄作业
动线优先:让做饭、吃饭、玩耍动线丝滑,少绕路 = 多省心!
弹性空间:预留可变换区域(比如书房变客房),应对家庭不同阶段需求~
采光为王:能砸墙就砸墙,让阳光铺满家,住起来幸福感翻倍!
从 “头疼户型” 到 “梦中情房”,这改造太绝了!四口之家想装修的宝子,直接锁死这套思路? 你家户型改造有啥难题?评论区聊聊,一起解锁新家密码~
#户型改造 #四口之家 #装修灵感 #空间设计 #收纳技巧