






卧室12平,无衣帽间??但是衣服很多
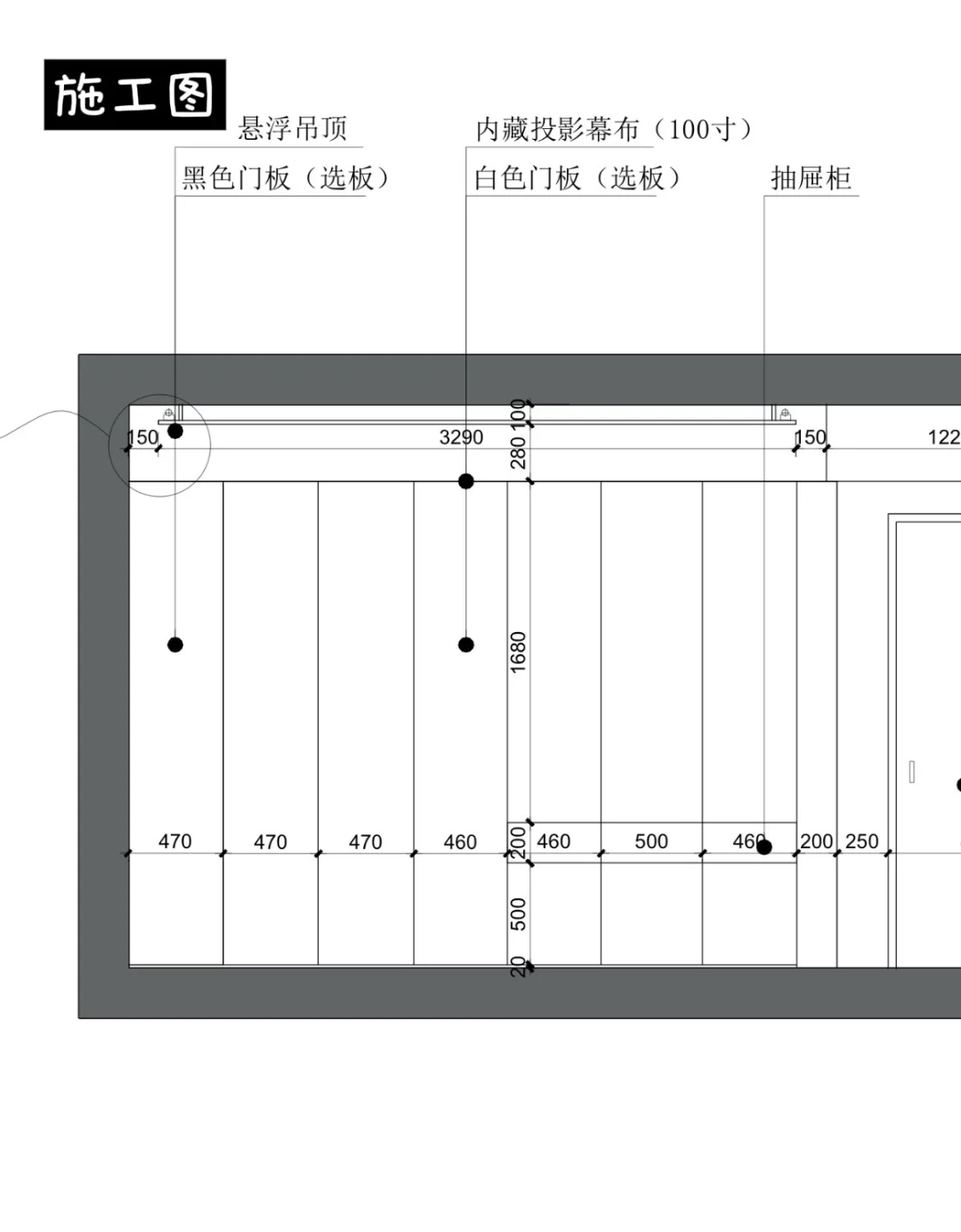
所以在床尾做了整排3.4米长的满墙衣柜
衣柜上方嵌入式电动幕布
隐藏式的投影,快乐实现卧室看大片??
用下来太舒服啦~
安装前几个在装修时注意的问题分享:
❶不装幕布直接投在柜子上如何
• 柜子的缝隙还是会影响观感,幕布更有电影院的感觉。如果有整面大白墙也是可以的
❷嵌入式幕布硬装预留什么
• 提前选好投影仪和幕布品牌和尺寸
?PS:根据卧室-衣柜-床头厚度的尺寸选择最合适的眼距尺寸,不是越大越好
• 提前告知硬装团队你的想法,出施工图
• 施工时木工预留吊顶凹槽,电工预留电位电线
❸投影仪放在哪里
• 做吊顶投影仪:告知木工电工,预留吊顶电源
• 如果不做吊顶投影仪想要灵活拿取:可以在对面的柜子预留空间放置,可以在定制柜子的时候做隐藏式或者抽拉式,另外记得在柜内预留电线穿过的孔和附近插座,避免充电线外露
❹最好不要像我这样放在开放柜或者直接放在床头柜,很容易藏灰!
#床尾衣柜这样设计 #卧室空间合理利用 #卧室投影仪 #内嵌幕布#投影仪 #卧室装修灵感库 #主卧设计 #床尾衣柜 #氛围感卧室 #卧室好物 #卧室布置 #卧室设计 #卧室衣柜 #卧室装修
所以在床尾做了整排3.4米长的满墙衣柜
衣柜上方嵌入式电动幕布
隐藏式的投影,快乐实现卧室看大片??
用下来太舒服啦~
安装前几个在装修时注意的问题分享:
❶不装幕布直接投在柜子上如何
• 柜子的缝隙还是会影响观感,幕布更有电影院的感觉。如果有整面大白墙也是可以的
❷嵌入式幕布硬装预留什么
• 提前选好投影仪和幕布品牌和尺寸
?PS:根据卧室-衣柜-床头厚度的尺寸选择最合适的眼距尺寸,不是越大越好
• 提前告知硬装团队你的想法,出施工图
• 施工时木工预留吊顶凹槽,电工预留电位电线
❸投影仪放在哪里
• 做吊顶投影仪:告知木工电工,预留吊顶电源
• 如果不做吊顶投影仪想要灵活拿取:可以在对面的柜子预留空间放置,可以在定制柜子的时候做隐藏式或者抽拉式,另外记得在柜内预留电线穿过的孔和附近插座,避免充电线外露
❹最好不要像我这样放在开放柜或者直接放在床头柜,很容易藏灰!
#床尾衣柜这样设计 #卧室空间合理利用 #卧室投影仪 #内嵌幕布#投影仪 #卧室装修灵感库 #主卧设计 #床尾衣柜 #氛围感卧室 #卧室好物 #卧室布置 #卧室设计 #卧室衣柜 #卧室装修