家居用品
我在小红书抄的衣柜,被邻居们夸爆了(附图纸
2025-11-03 12:37
我在小红书抄的衣柜,被邻居们夸爆了(附图纸

我在小红书抄的衣柜,被邻居们夸爆了(附图纸

我在小红书抄的衣柜,被邻居们夸爆了(附图纸

我在小红书抄的衣柜,被邻居们夸爆了(附图纸

我在小红书抄的衣柜,被邻居们夸爆了(附图纸

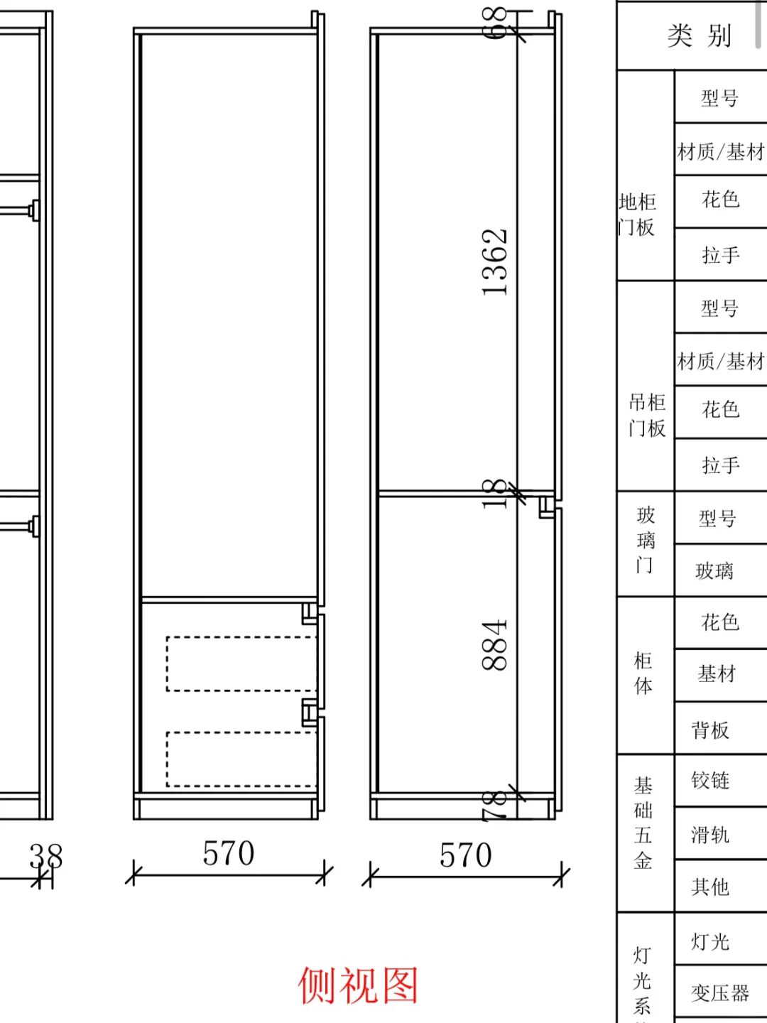
小红书上做了很多功课!最后做的分段式衣柜,效果真的太太太好了!!!设计合理又很实用,附上我的柜子图纸~
?柜体是兔宝宝衫木芯,柜门是兔宝宝的欧松板,色号都是暖白~
#一门到顶衣柜 #衣柜设计 #跟着小红书学装修 #全屋设计 #新家装修 #装修日记 #卧室 #分段式衣柜
发表评论
0评