








精密恒温恒湿实验室是纺织品检测、计量校准、精密制造、生物医药等领域的核心设施。其建设要求远高于普通恒温恒湿环境,追求极高的稳定性、均匀性和精度。
一、核心设计指标
这是建设的出发点和验收标准,必须首先明确。
温度/湿度范围: 例如 20±1°C, 65±2% RH。
温湿度波动度(精度): 如±0.1°C ~ ±0.5°C,±1% RH ~ ±3% RH,这是最关键且最难实现的指标之一。
温湿度均匀度: 空间各点的温湿度差。
其他: 洁净度、噪音、照度、静电等。
二、建筑结构与装修(“外壳”保温隔湿)
围护结构:
材料: 必须采用金属夹芯保温板(如岩棉/聚氨酯彩钢板),具有良好的保温、防潮、密封和防火性能。
厚度: 通常选择50mm、75mm或100mm,越厚保温效果越好。
吊顶与地板: 吊顶也需采用保温板密封。地面建议先做防潮处理,再铺设保温材料(如XPS挤塑板),最后做环氧自流平地坪,保证无缝、坚固、易清洁。
气密性:
所有板与板、板与天地之间的接缝必须使用密封胶彻底密封。
穿墙孔洞: 所有管道、线缆穿过墙壁必须使用密封套件进行严格密封,防止内外空气交换。
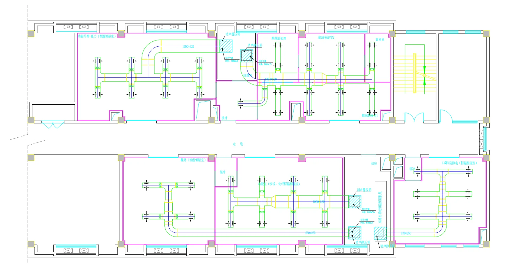
三、空调通风系统
这是技术核心,决定温湿度控制精度的关键。
精密空调机组:
类型: 必须选用工业级精密恒温恒湿空调,绝不能使用普通家用或商用空调。
制冷方式: 通常采用双压缩机、多级调节或变频技术,以实现更平滑的制冷量和更小的温湿度波动。
再热方式: 必须采用电再热或热水/蒸汽再热,以精确补偿制冷除湿后产生的过冷量。
加湿方式: 首选电极/电热蒸汽加湿(纯净水),加湿精度高,易于控制。
除湿方式: 常规制冷除湿+预留转轮除湿接口(应对低湿或高湿负荷需求)。
送风方式: 推荐采用孔板送风或双层百叶,保证送风均匀、平稳。
回风方式: 推荐下侧回风或地面格栅回风,形成均匀、稳定的气流循环。
四、自动控制系统
控制器: 采用高精度、高稳定性的DDC(直接数字控制器) 或PLC(可编程逻辑控制器)。
传感器:安装位置、精度、控制逻辑要求。#工程设计 #实验室仪器 #实验室日常
一、核心设计指标
这是建设的出发点和验收标准,必须首先明确。
温度/湿度范围: 例如 20±1°C, 65±2% RH。
温湿度波动度(精度): 如±0.1°C ~ ±0.5°C,±1% RH ~ ±3% RH,这是最关键且最难实现的指标之一。
温湿度均匀度: 空间各点的温湿度差。
其他: 洁净度、噪音、照度、静电等。
二、建筑结构与装修(“外壳”保温隔湿)
围护结构:
材料: 必须采用金属夹芯保温板(如岩棉/聚氨酯彩钢板),具有良好的保温、防潮、密封和防火性能。
厚度: 通常选择50mm、75mm或100mm,越厚保温效果越好。
吊顶与地板: 吊顶也需采用保温板密封。地面建议先做防潮处理,再铺设保温材料(如XPS挤塑板),最后做环氧自流平地坪,保证无缝、坚固、易清洁。
气密性:
所有板与板、板与天地之间的接缝必须使用密封胶彻底密封。
穿墙孔洞: 所有管道、线缆穿过墙壁必须使用密封套件进行严格密封,防止内外空气交换。
三、空调通风系统
这是技术核心,决定温湿度控制精度的关键。
精密空调机组:
类型: 必须选用工业级精密恒温恒湿空调,绝不能使用普通家用或商用空调。
制冷方式: 通常采用双压缩机、多级调节或变频技术,以实现更平滑的制冷量和更小的温湿度波动。
再热方式: 必须采用电再热或热水/蒸汽再热,以精确补偿制冷除湿后产生的过冷量。
加湿方式: 首选电极/电热蒸汽加湿(纯净水),加湿精度高,易于控制。
除湿方式: 常规制冷除湿+预留转轮除湿接口(应对低湿或高湿负荷需求)。
送风方式: 推荐采用孔板送风或双层百叶,保证送风均匀、平稳。
回风方式: 推荐下侧回风或地面格栅回风,形成均匀、稳定的气流循环。
四、自动控制系统
控制器: 采用高精度、高稳定性的DDC(直接数字控制器) 或PLC(可编程逻辑控制器)。
传感器:安装位置、精度、控制逻辑要求。#工程设计 #实验室仪器 #实验室日常