


? 1. 项目定位:
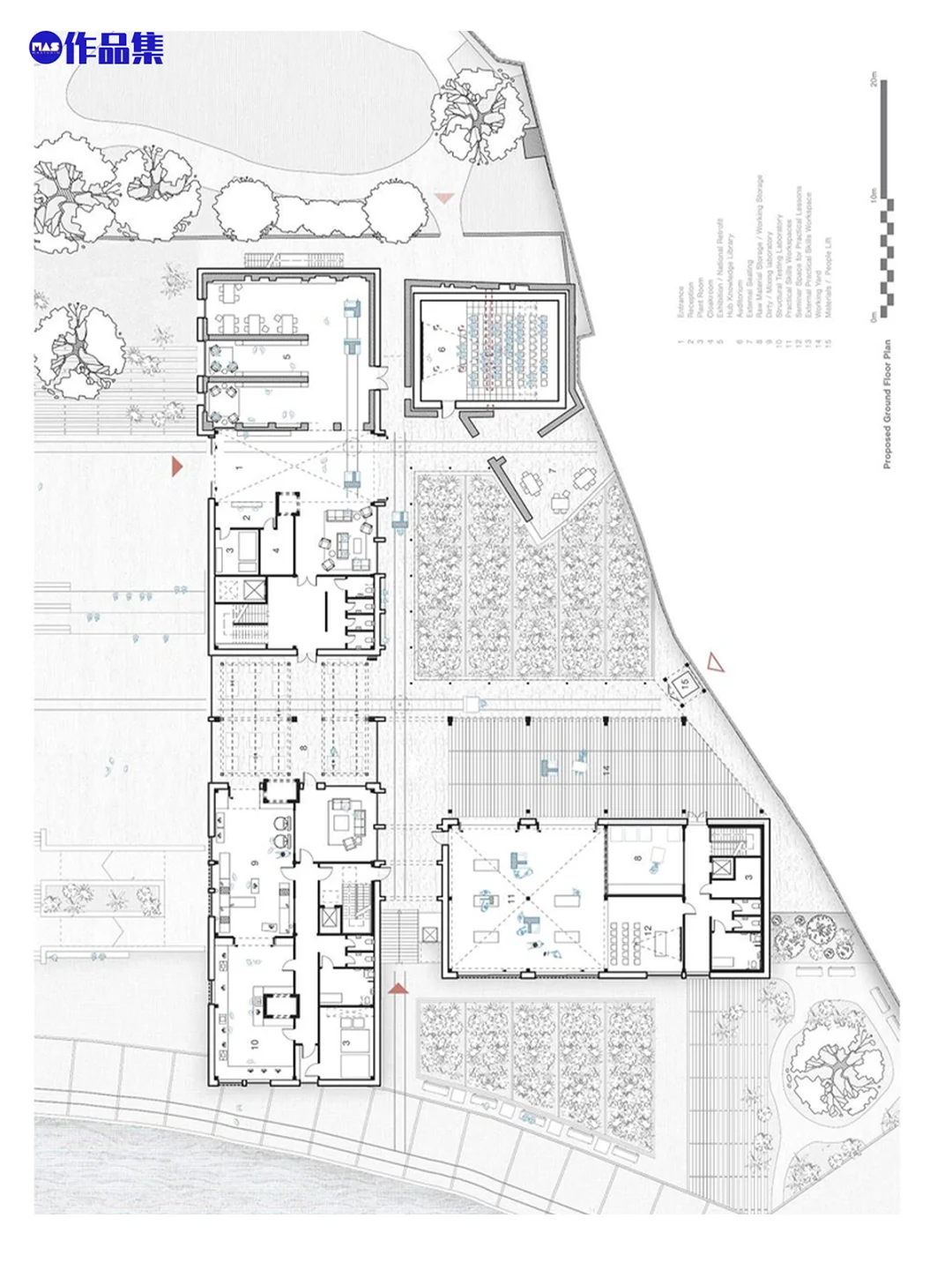
本项目旨在通过“再生改造中心”将可持续与社区导向的产业重新带回布里斯托尔的浮动港湾。面对当下城市更新中“改造难以规模化推广”的困境,设计试图打破这种负循环,建立一个集 教育、展示与社区交流 于一体的开放平台。这里不仅是建筑改造的实践基地,更是城市产业转型与公众认知的纽带,连接本地工匠、行业专家与普通居民,促进正式与非正式的知识共享。
? 2. 设计策略:
项目的核心是一处“活跃工坊式中庭”,用于培训当地工匠掌握前沿的建筑改造与节能技术。设计在原有码头遗迹与 9 米高的石墙基础上进行重构,引入一条轨道系统,将物料运输与空间动线有机结合——参观者在建筑中穿行的同时,也能直观感受到改造过程的动态展示。这样的设计让历史的遗迹与当代的低碳建筑理念彼此交织,共同塑造一个“面向未来的工艺场景”。
? 3. 形式与功能的融合:
建筑本身即是一件“碳负性教育工具”。空间动线上有意暴露出结构与材料的构造细节,以展示木结构创新与再利用的可能性。三座突出的“烟囱体量”成为建筑的视觉与环境标识——它们不仅承担自然通风的功能,也作为结构锚点支撑起外露的胶合木主梁系统。通过这些元素,建筑呈现出一种“从工业遗产到生态未来”的连续性叙事。
作者:Toby Ritson
图纸来源于RIBA官网,此分享仅供学习使用,版权归作者所有
#建筑作品集 #建筑留学 #留学作品集 #叙事性建筑 #MAS建筑 #建筑模型 #建筑留学建筑作品集 #室内设计作品集 #旧建筑改造 #建筑学
本项目旨在通过“再生改造中心”将可持续与社区导向的产业重新带回布里斯托尔的浮动港湾。面对当下城市更新中“改造难以规模化推广”的困境,设计试图打破这种负循环,建立一个集 教育、展示与社区交流 于一体的开放平台。这里不仅是建筑改造的实践基地,更是城市产业转型与公众认知的纽带,连接本地工匠、行业专家与普通居民,促进正式与非正式的知识共享。
? 2. 设计策略:
项目的核心是一处“活跃工坊式中庭”,用于培训当地工匠掌握前沿的建筑改造与节能技术。设计在原有码头遗迹与 9 米高的石墙基础上进行重构,引入一条轨道系统,将物料运输与空间动线有机结合——参观者在建筑中穿行的同时,也能直观感受到改造过程的动态展示。这样的设计让历史的遗迹与当代的低碳建筑理念彼此交织,共同塑造一个“面向未来的工艺场景”。
? 3. 形式与功能的融合:
建筑本身即是一件“碳负性教育工具”。空间动线上有意暴露出结构与材料的构造细节,以展示木结构创新与再利用的可能性。三座突出的“烟囱体量”成为建筑的视觉与环境标识——它们不仅承担自然通风的功能,也作为结构锚点支撑起外露的胶合木主梁系统。通过这些元素,建筑呈现出一种“从工业遗产到生态未来”的连续性叙事。
作者:Toby Ritson
图纸来源于RIBA官网,此分享仅供学习使用,版权归作者所有
#建筑作品集 #建筑留学 #留学作品集 #叙事性建筑 #MAS建筑 #建筑模型 #建筑留学建筑作品集 #室内设计作品集 #旧建筑改造 #建筑学