说起德国人,人们通常想到的词汇是:严谨、守时、严肃、认真。那么德国人设计的电器图纸又是怎样的呢,和我国的又有什么区别呢?
今天在这里简选一个冷料供给仓的图纸,希望对大家有所帮助。

图一:总览。
设备的生产日期、柜内电压、电流、功率、绝缘等级、导线的截面积、颜色(老外的黑线可是火线、蓝线才是零线,真个设备的所有外部导线严格按颜色区别)。外接端子定义,标注的清楚。

图二:供电源。
老外的图纸和接线是没有线号的,标的是元件,给元件编号,元件的几号触点接的是哪里,很清楚,不用再去满柜子找线号了。空气开关过载保护电流全部都标在图纸上,换新开关时方便调整,省去再去查和算的麻烦。

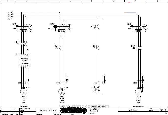
图三:负载输出。
变频器的型号、电机的功率、电流、及过载保护电流全部标注。

图四:Mometom模块供电源,及Fip/IO网络
模块型号也有标注。注意3.1标明是电源从哪里来,3.8是标明去哪儿了。

图五:模块的输入,输出。
端子号上中间标的是程序内这个点的地址,4.2下方的那一堆触点标明的是在程序里的逻辑相关。

图六:出柜端子的定义
不是说国外的月亮比咱们的圆,德国人的敬业精神是非常值得尊敬的。在工作中多学习老外的严谨作风,特别是在细节上。
免责声明:本文转自网络,版权归原作者所有,如涉及作品版权问题,请及时与我们联系删除,谢谢!
推荐阅读:为什么很多德国人甘愿做技工而不愿拼文凭,中国人正好相反?,戳下方“阅读原文”
