建筑材料
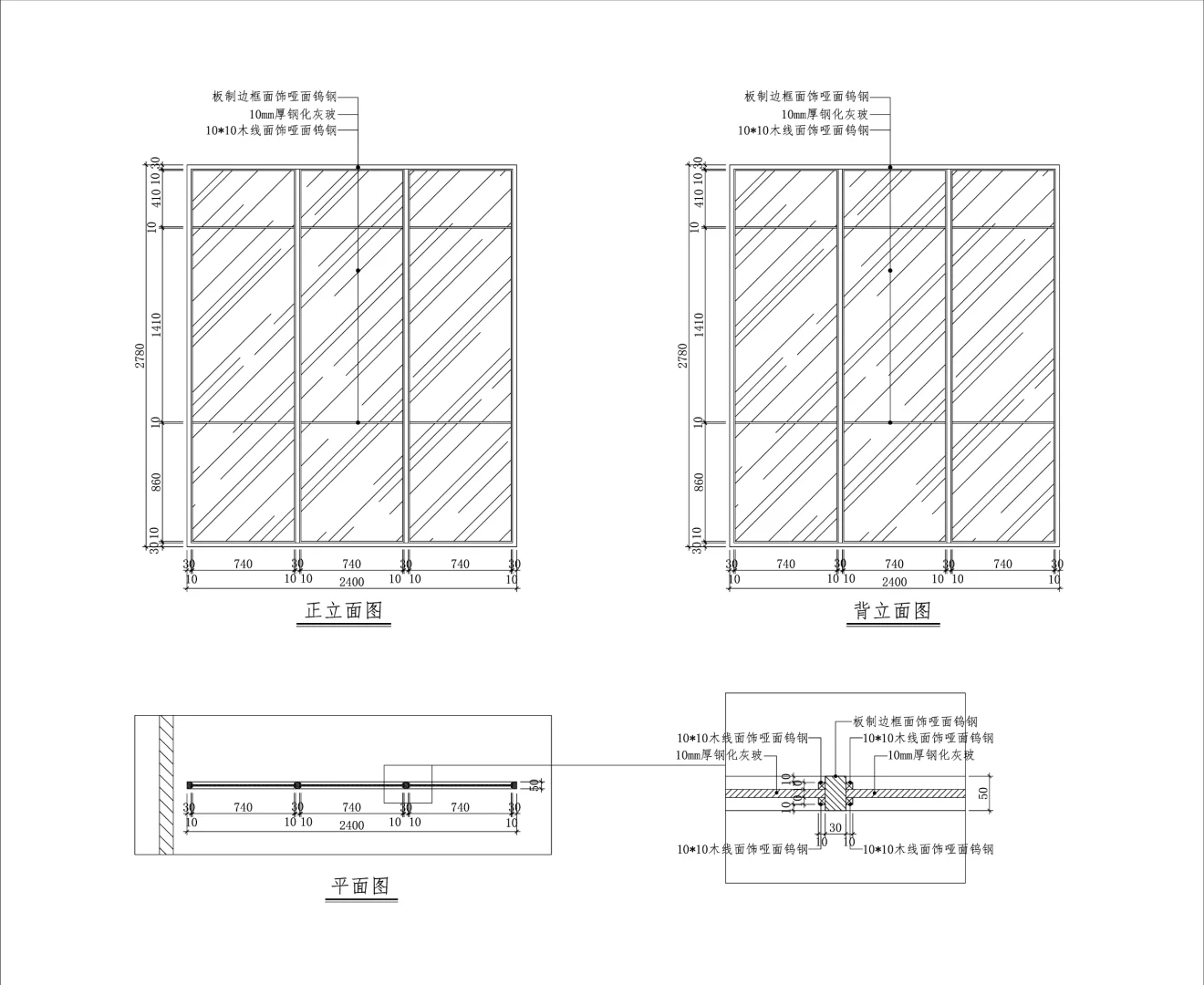
玻璃隔断CAD工艺图的画法
2025-10-31 01:24
玻璃隔断CAD工艺图的画法

玻璃隔断CAD工艺图的画法

#玻璃隔断 #施工图
发表评论
0评