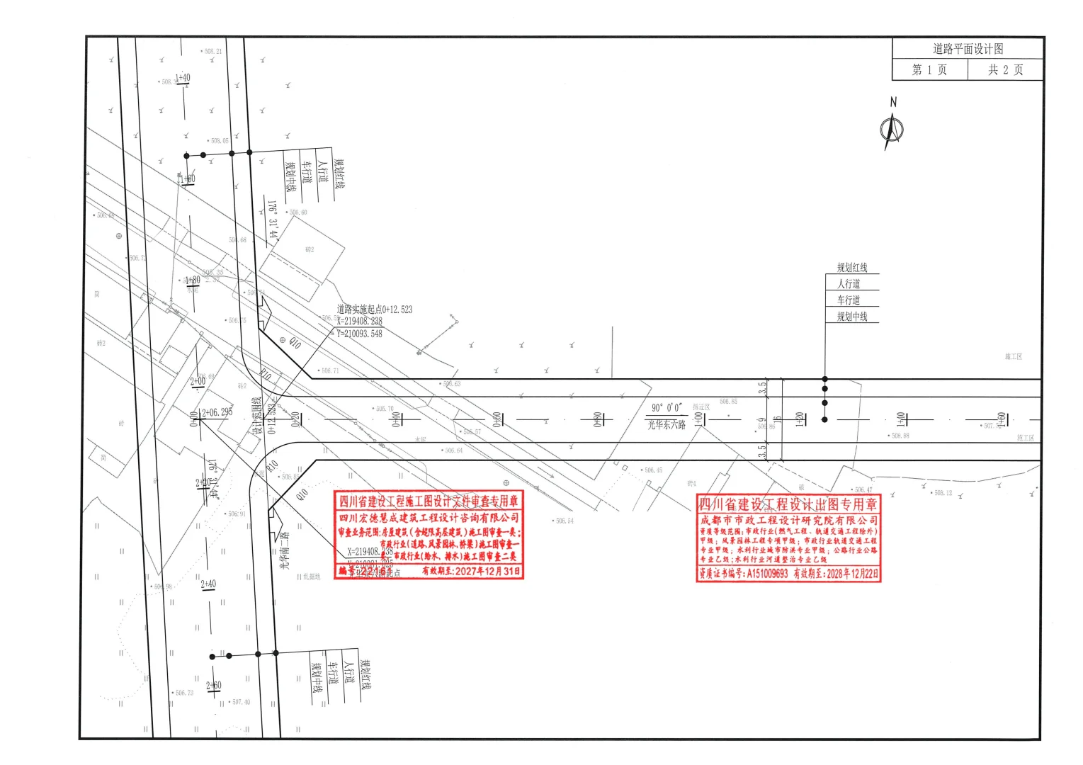
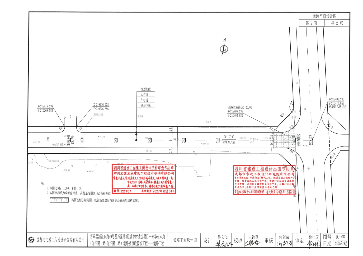
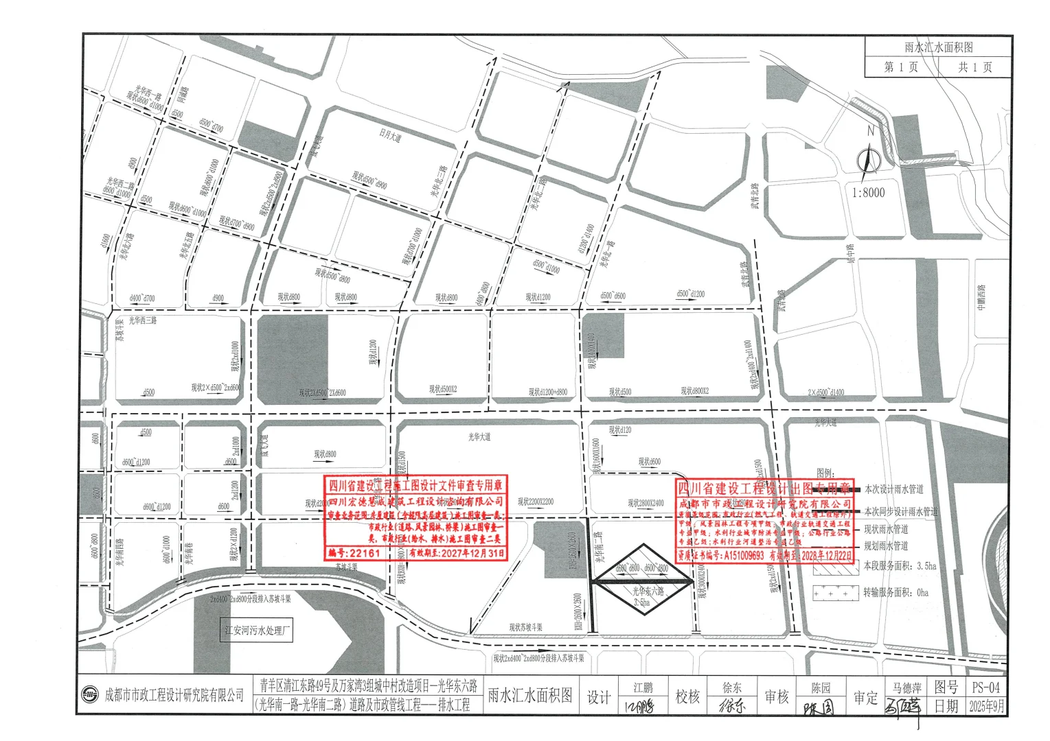
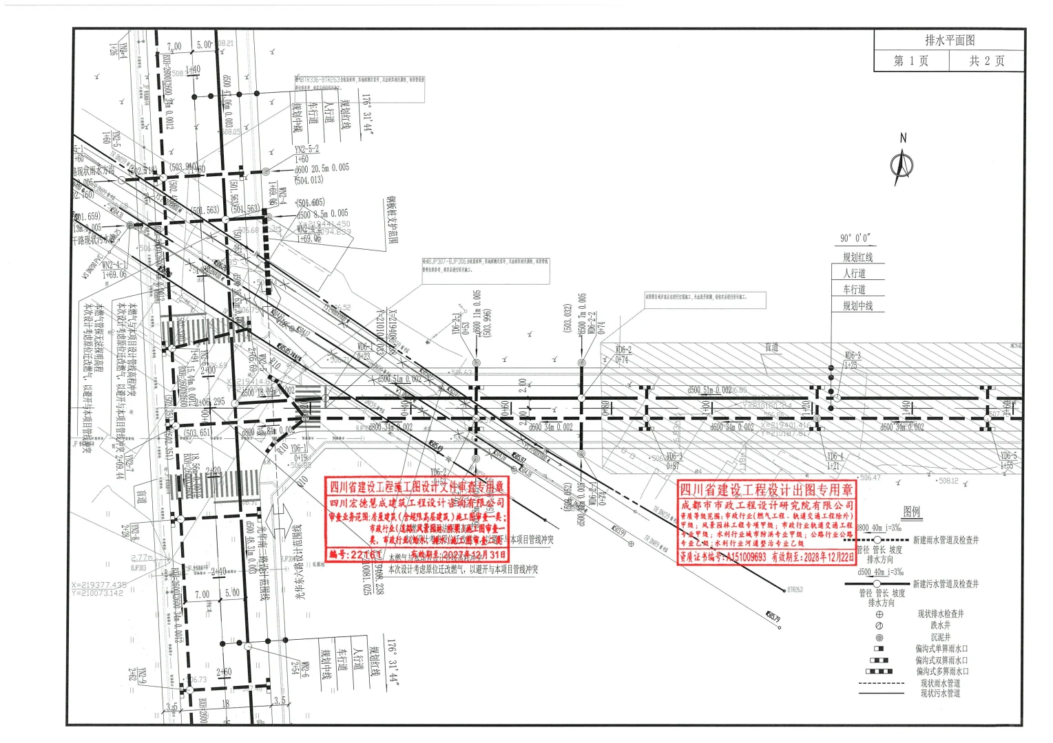
光华东六路(光华南一路-光华南二路)
2025-10-30 18:09
光华东六路(光华南一路-光华南二路)

















光华东六路(光华南一路-光华南二路)
位于:成都市青羊区蔡桥街道万家湾社区,西起待建的光华南二路,东至光华南一路。
项目:青羊区光华东六路规划红线宽度16米,道路长度约335.028米(K0+000~K0+335.028)实施长度为292.49米(K0+23.01~K0+315.50)。
主要建设内容包括道路工程、给排水工程、照明工程、电力工程、交通工程、涵洞工程、桥梁修复工程、绿化景观工程及附属工程等。
[2025年9月30日开始施工招标]
工期:2025年11月-2026年10月
#万家湾 #培风 #悦湖