返回
家居用品
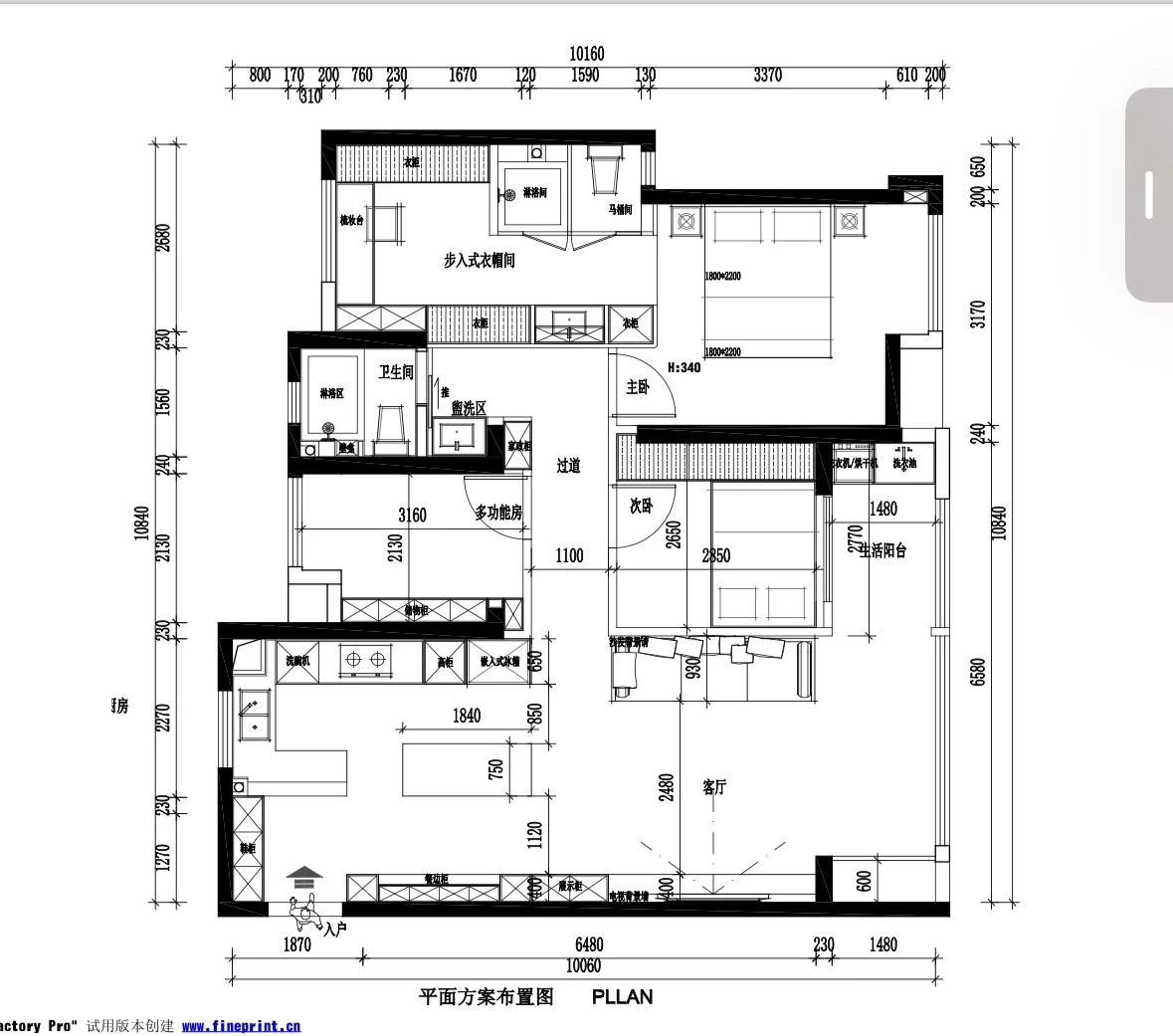
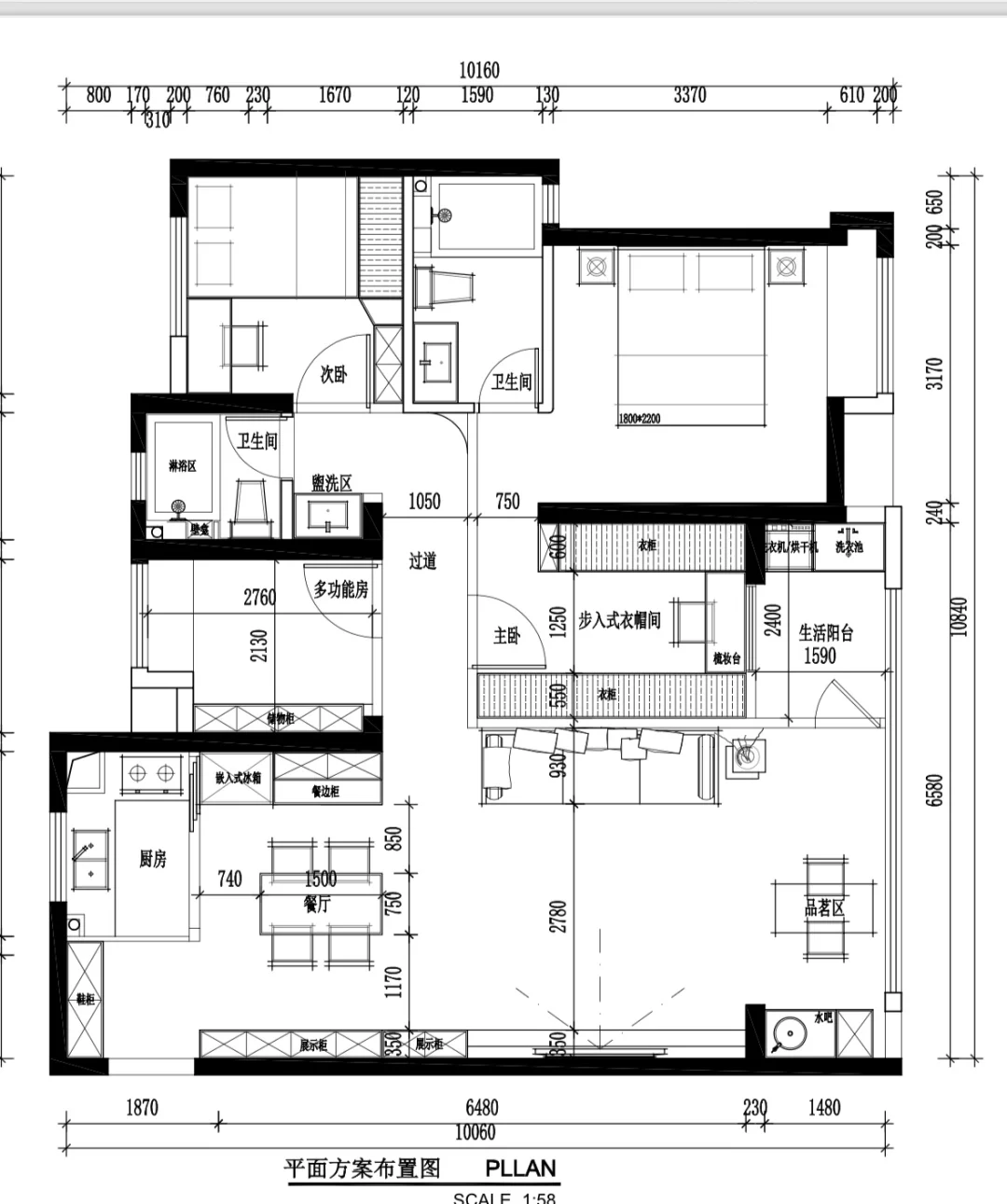
哪个布局比较合适啊?
2025-10-29 14:32
哪个布局比较合适啊?
两版布局哪个比较合理呢
#空间布局优化
#小户型设计
#请大神指点
#平面布局
#设计自己的家
#空间布局规划
#户型优化布局
#我这人就爱听劝
#户型改造
#装修
打赏
发表评论
0评