













原始户型结构还是不错的,可改造行较强。根据业主的需求,对空间做出了一个截然不同的重构。
在原始户型里:
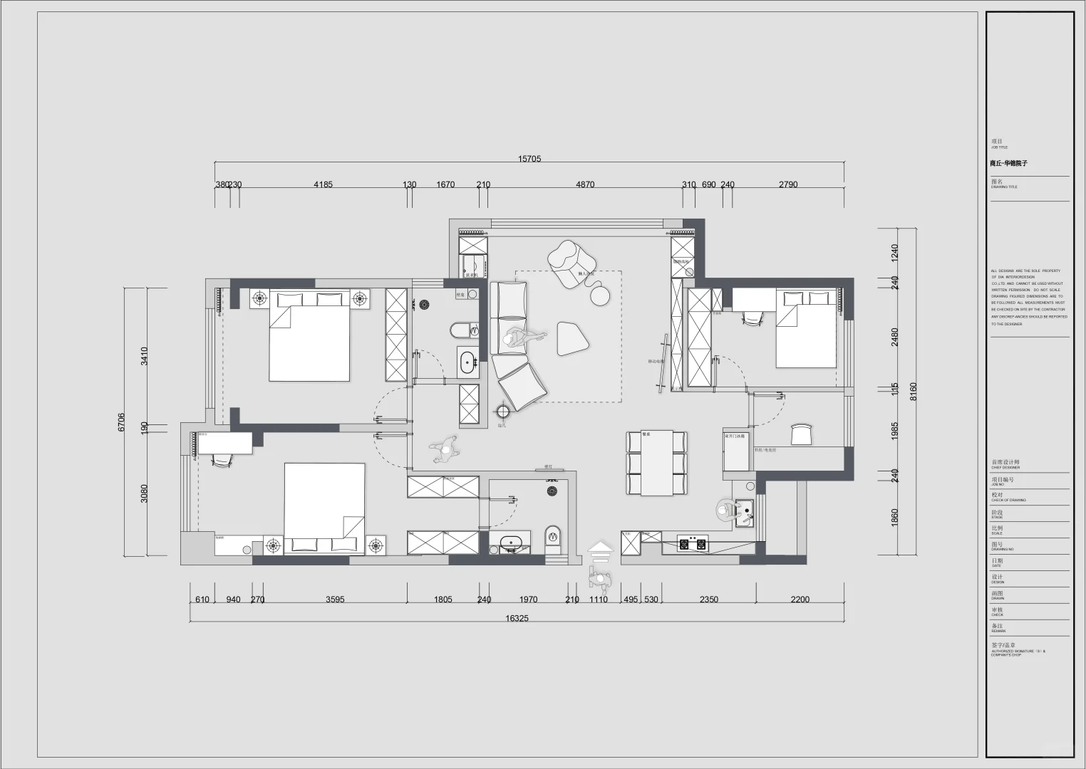
1 原户型三室一厅一厨两卫,拥有一个小横厅和多功能的套卧,不过餐厅只能并入客厅,且业主对多功能套卧需求不大
2 入户玄关位置采光差 业主想要开放式厨房
3 原户型主卧可利用空间小
空间改造后:
1 开放式厨房,增大厨房的实用面积的同时,把小横厅的空间也释放出来,餐厅相对独立(注:电梯厅有储物鞋柜的位置)
2 原户型的多功能套卧拆解重构,独立出一个书房/电竞房,满足业主的需求;且增大了次卧的储物空间
3 业主接受可移动电视,生活方式较年轻化,对舒适度追求较高
4 客卫的干湿分离舍弃,增加收纳空间
5 主次卧调换位置,满足梳妆台,采光阳台,次净衣区的需求
平面方案的最终呈现,一定是符合业主居住需求,功能要求和对舒适度的追求。
#意式风格 #现代简约设计 #意式 #平面方案设计 #户型改造优化 #装修设计 #方案优化
在原始户型里:
1 原户型三室一厅一厨两卫,拥有一个小横厅和多功能的套卧,不过餐厅只能并入客厅,且业主对多功能套卧需求不大
2 入户玄关位置采光差 业主想要开放式厨房
3 原户型主卧可利用空间小
空间改造后:
1 开放式厨房,增大厨房的实用面积的同时,把小横厅的空间也释放出来,餐厅相对独立(注:电梯厅有储物鞋柜的位置)
2 原户型的多功能套卧拆解重构,独立出一个书房/电竞房,满足业主的需求;且增大了次卧的储物空间
3 业主接受可移动电视,生活方式较年轻化,对舒适度追求较高
4 客卫的干湿分离舍弃,增加收纳空间
5 主次卧调换位置,满足梳妆台,采光阳台,次净衣区的需求
平面方案的最终呈现,一定是符合业主居住需求,功能要求和对舒适度的追求。
#意式风格 #现代简约设计 #意式 #平面方案设计 #户型改造优化 #装修设计 #方案优化