
1、前言
设计和施工人员反映,金属电缆桥架的接地中间增加连接点(每隔20m~30m应增加一个连接点)实施起来有难度,标准图集的做法和工程实际不符,下面从溯源角度进行分析。
GB 55024-2022《建筑电气与智能化通用规范》8.7.1条文如下:
“电缆桥架本体之间的连接应牢固可靠,金属电缆桥架与保护导体的连接应符合下列规定:
1、 电缆桥架全长不大于30m时,不应少于2处与保护导体可靠连接;全长大于30m时,每隔20m~30m应增加一个连接点,起始端和终点端均应可靠接地;
2、 非镀锌电缆桥架本体之间连接板的两端应跨接保护联结导体,保护联结导体的截面面积应符合设计要求;
3 、镀锌电缆桥架本体之间不跨接保护联结导体时,连接板每端不应少于2个有防松螺帽或防松垫圈的连接固定螺栓。”
条文解释:
GB 55024-2022 7.2.11 条文解释,8.7.1 建筑电气工程中的电缆桥架大量采用钢制产品,所以与保护导体的连接至关重要,增加与保护导体的连接点,目的也是为了保证供电干线电路的使用安全。有的施工设计是沿金属桥架敷设一根铜或钢制成的保护导体,且与桥架有数个电气连通点,则金属桥架与保护导体的连接十分可靠,验收时可视同符合本条第2款和第3款的规定。非镀锌电缆桥架是指钢板制成涂以油漆或其他涂层防腐的电缆桥架,镀锌电缆桥架也是钢板制成的,但是经过了镀锌防腐处理。保护导体的截面面积是由设计单位根据计算确定的,施工选用时应以不小于设计要求为原则。
本条要求与保护导体可靠连接是指螺栓锁紧连接。

2、溯源
电缆桥架属于布线系统,是电气装置的一部分。早期,国家标准、行业标准要求金属桥架(或线槽)应接地,包括GB50169—92《电气装置安装工程 接地装置施工及验收规范》、GB50168-92《电气装置安装工程电缆线路施工及验收规范》、GB50258-96《电气装置1KV及以下配线工程施工及验收规范》和JGJ/T 16- 92《民用建筑电气设计规范》等。
2.1
GB 50303-2002《建筑电气工程施工
质量验收规范》
金属电缆桥架更详细的接地要求始于GB 50303-2002, 其12.1.1条第1款“金属电缆桥架及其支架全长应不少于2处与接地(PE)或接零(PEN)干线相连接”;
第2款“非镀锌电缆桥架间连接板的两端跨接铜芯接地线,连接板最小允许截面积不小于4mm2”;
第3款“镀锌电缆桥架间连接板的两端不跨接接地线,但连接板两端不少于2个有防松螺帽或防松垫圈的连接固定螺栓”。
小结:首次提出全长“不少于2处与接地(PE)或接零(PEN)干线相连接”、“跨接铜芯接地线”。
2.2
GB 50169-2006《电气装置安装工程
接地装置施工及验收规范》
GB 50169-2006 3.4.6条,沿电缆桥架敷设铜绞线、镀锌扁钢及利用沿桥架构成电气通路金属梯架、托盘或槽盒本体之间的连接应牢固可靠,与保护导体的连接应符合下列规定:
第1款,梯架、托盘和槽盒全长不大于30m时,不应少于2处与保护导体可靠连接;全长大于30m时,每隔20m~30m应增加一个连接点。起始端和终点端均应可靠接地。
第2款,非镀锌梯架、托盘和槽盒本体之间连接板的两端应跨接保护联结导体,保护联结导体的截面积应符合设计要求。
第3款,镀锌梯架、托盘和槽盒本体之间不跨接保护联结导体时,连接板每端不应少于2个有防松螺帽或防松垫圈的连接固定螺栓。
小结:增加了“每隔20m~30m应增加一个连接点”、“起始端和终点端均应可靠接地”,并推荐“沿电缆桥架敷设铜绞线、镀锌扁钢”。
2.3
GB 50303-2015《建筑电气工程
施工质量验收规范》
GB 50303-2015 11.1.1条,金属梯架、托盘或槽盒本体之间的连接应牢固可靠,与保护导体的连接应符合下列规定:
第1、2、3款同GB 50169-2006。
小结:推荐“金属梯架、托盘或槽盒本体之间的连接”;并且经过改写为通用规范GB 55024-2022 8.7.1,两者技术内容几乎完全一致。
2.4
对比汇总
表1 电缆桥架接地条文对比汇总表


3、争议点和解决方案
3.1
“每隔20m~30m应增加一个连接点”
如何实施
条文中有一个争议点——“每隔20m~30m应增加一个连接点”如何实施。
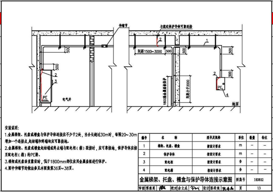
电缆桥架内PE导体通常与相导体共用外护物的,不破坏线缆外护层,很难实现“每隔20m~30m应增加一个连接点”;破坏保护层又损害了线缆的可靠性。18D802《建筑电气工程施工安装》给出的做法是沿电缆桥架路由预留保护接地端子,见图1。实际上,该做法在可行性和合理性方面均不如在沿金属桥架预留接地导体。“沿金属桥架预留接地导体”不需要土建参与预留,且敷设、连接和维护更方便,重要的是接地回路阻抗更小。

图1 18D802电缆桥架接地做法
3.2
沿桥架单独设置铜导体或镀锌扁钢
早期,03D501-4《接地装置安装》的做法值得推荐,见图2。沿金属桥架内侧或外侧敷设铜导体或镀锌扁钢,能很好地解决“每隔20m~30m应增加一个连接点”问题。

图2 03D501-4电缆桥架接地做法
3.3
单独设置铜导体或镀锌扁钢并非多余
相关研究表明,金属电缆桥架本身可做为理想的接地故障回路导体。大部分磁场集中在金属电缆桥架内,回路导体互感最小化,接地故障回路阻抗大大降低;发生故障时,由于大部分故障电流沿金属电缆桥架流过。
理论上,不需要在金属电缆桥架内专门敷设铜导体或镀锌扁钢,但现实并非理想。金属电缆桥架标准长度2m,较长的电缆桥架中会出现很多连接点,这些连接点不会一直保持完好状态;由于温度变化导致的金属电缆桥架膨胀和收缩,使得连接松动;另外,金属电缆桥架自身受外力和应力影响也可能导致接头松动或断开。
IEEE 文献记载,金属电缆桥架连续性测试中,很多接头处出现电弧和火花。关键问题就在于金属电缆桥架及其所有接头不能一直保持完整性,接头不良和中断时有发生。
通过附加导体可以规避以上连接不良问题。安装附加导体绝不是认为金属电缆桥架不足以做为接地故障回路导体,而是强调接地故障回路导体的重要性,以及保持完整性的必要性。因此,IEEE 制定了一项推荐做法,在所有金属电缆桥架中附加单独的接地故障回路导体。

4、结论
通过以上分析得出以下结论:
1
金属电缆桥架内侧或外侧敷设一根铜导体或镀锌扁钢有利于实现“每隔需要20m~30m应增加一个连接点”;
2
金属电缆桥架内侧或外侧敷设一根铜导体或镀锌扁钢是保证接地故障回路完整性的必要措施。
3
不单独设置铜导体或镀锌扁钢时,非镀锌梯架、托盘和槽盒本体之间的跨接线理应是保护接地导体,不是等电位联结导体,当然,在美国标准中,“接地”和“联结”并不严格区分。

-END-




-END-




/权威期刊及报告发布/
========================== =======================



